FROM INSPIRATION TO INSTALLATION
Signed in as:
filler@godaddy.com
FROM INSPIRATION TO INSTALLATION
Signed in as:
filler@godaddy.com
Office environments require areas for employees to complete their duties in a comfortable setting and optimally with the most efficient workspaces. For these needs, desking is the core element to consider and implement. From very large environments with many employees grouped together to small environments and individual offices, NJ Laminates can design and build desking to meet any need for desks and workstations in your office space.
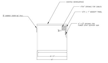
See the following representative samples of custom desking created for our client’s projects.












NJ Laminates Inc.
600-L Ryerson Road, Lincoln Park, New Jersey 07035, United States
We use cookies to ensure that we give you the best experience on our website. Additionally, any personal information that you provide to us through the use of this site is not sold to any third party. Any 3rd party services used to enhance your experience (e.g. Google Analytics) are covered by their own privacy policies. Your continued use of the this site will imply your acceptance of these cookies and policies.